Bygningen på Vesterbro
Vesterbrogade 75 ligger på hjørnet af Vesterbrogade og Oehlenschlægersgade. Ejendommens samlede areal udgør 2.481 kvadratmeter med både bolig og erhverv fordelt på fem etager samt udnyttet tagetage og delvis kælderetage.
Bygningen mod Vesterbrogade er opført omkring 1860 og blev sammenbygget og i den forbindelse ombygget omkring 1920. I de efterfølgende 100 år er bygningen ombygget en række gange og har bl.a. huset den underlødige biograf Hawaii Bio og senere beværtningen Guldregn.
En farvearkæologisk undersøgelse har vist, at facadens nuværende farve adskiller sig fra den oprindelige. For at nærme sig det oprindelige udtryk bliver facaderne derfor pudset og tilført en hvidgrå kalkfarve.



Transformation til moderne kollegie
Tegnestuen Vandkunsten står for transformationen af den gamle ejendom. Vandkunsten er en dansk arkitektvirksomhed, som gennem halvtreds år har udfordret byggeriets rutiner, og som er kendt for deres arbejde med at skabe nye boformer og fællesskaber.
Dreyers Kollegie indrettes også med fokus på fællesskab.
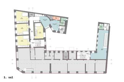
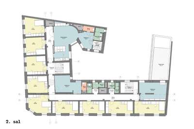
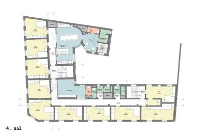
Beboerne vil mødes naturligt i det daglige bl.a. i gårdhaven, i fælleskøkkenerne, og på tagterrasserne. På hver etage indrettes et fælles opholdsrum, som kan benyttes af beboere på tværs af etager til f.eks. bibliotek, studieplads, musikrum, tv-stue, bordfodbold eller byttebiks. I kælderen vil der være adgang til cykelkælder og værksted, og vaskeri og tørrerum placeres i stueetagen. Der vil fortsat være erhverv i stueplan.
Den enkelte bolig indrettes med fast inventar til opbevaringsplads, garderobe og håndvask og med trægulve. På de nederste etager kan man komme helt tæt på byens puls i siddenicherne i vinduet. I tagetagen kan man nyde udsigten over byens tage fra sin karnap.

Fakta: Sådan bliver Dreyers Kollegie
Boliger: Kollegiet får i alt 42 boliger på mellem ca. 14 og 21 kvadratmeter. Boligerne har indbygget seng, vaskeniche, skrivebord og opbevaringsplads. I de større boliger (på over 19 kvm) vil man kunne bo to.
nToilet og bad: Der vil være 1-2 delebad/toiletter til deling mellem ca. 4-6 beboere.
Køkkener: Der vil være 4 fælleskøkkener på kollegiet.
Øvrige fællesarealer: Kollegiet får 2 tagterrasser og et stort fælleshus i de lokaler, der tidligere husede Café Guldregn. I kollegiets kælder bliver der adgang til bl.a. vaskeri, tørrerum og cykelparkering.





Kontakt
Vil du vide mere om byggeprocessen, kan du skrive til SCHØDT på: soren@schodt.dk.
Pressehenvendelser: ek@dreyersfond.dk
Generelle henvendelser: lo@dreyersfond.dk
Er du studerende på jura eller arkitektur, og vil du gerne hjælpe Dreyers Fond med at udvikle konceptet for det nye kollegie, kan du skrive til Hele Landet på: morten@helelandet.dk.
Arbejder du for en NGO, og er du interesseret i at samarbejde med Dreyers Fond og kollegiet, kan du skrive til Hele Landet på morten@helelandet.dk.